Le programme architectural d'un pôle seigneurial : la commanderie de Montfrin (Gard) Damien CARRAZ*, Sophie ASPORD-MERCIER** ARCHÉOLOGIE DU MIDI MÉDIÉVAL, TOME 28 -2010, 297-316 297
Sur l’artère principale du village de Montfrin (Gard, cant. Aramon), l’oeil averti peut encore distinguer les restes d’une importante commanderie de l’ordre du Temple puis de l’Hôpital de Saint-Jean de Jérusalem.
L’état de délabrement qui touche aujourd’hui certaines parties de la construction ne suggère en rien ce que fut, au Moyen Âge, la qualité architecturale de ce pôle religieux et seigneurial, ni le rôle joué par les Templiers dans le développement du village.
Encore florissante à l’époque moderne, la commanderie de Montfrin, alors aux mains de l’ordre de Malte, a connu le sort de la plupart des propriétés ecclésiastiques. Vendu comme bien national à la Révolution à deux propriétaires, l’ensemble fut scindé en plusieurs parcelles en 1799, afin d’y * Maître de conférences en histoire médiévale, Université Blaise Pascal – Clermont-Ferrand 2. ** Docteur en histoire de l’art et archéologie médiévale, archéologue libérale.
Le programme architectural d’un pôle seigneurial : la commanderie de Montfrin (Gard). À la différence de commanderies implantées dans le plat-pays, les établissements insérés dans un tissu urbanisé ont rarement traversé les siècles postérieurs à la Révolution.
La commanderie de Montfrin (Gard) dont la plupart des bâtiments médiévaux, bien que fortement dégradés, ont été fossilisés dans l’habitat actuel, méritait donc une étude.
Les Templiers s’installèrent dans la basse vallée du Gardon au milieu du XIIe siècle à la suite d’une importante donation.
Dès 1169, ils avaient érigé, dans la villeneuve de Montfrin, une domus et une église appelée à devenir un centre paroissial. Les chartes montrent que la construction se poursuivit pendant tout le XIIIe siècle et attestent de l’existence d’un certain nombre de bâtiments relevant de la vie monastique et de la fonction seigneuriale. Héritiers de la commanderie après 1312,
les Hospitaliers réalisèrent, à la fin du Moyen Âge et après les guerres de Religion, un certain nombre de travaux que l’analyse du bâti et les visites prieurales permettent d’appréhender.
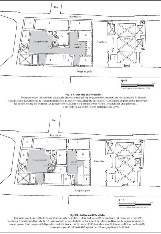
L’enquête archéologique conduite en 2007 et en 2009 ne constitue qu’une première approche, mais elle a permis de rendre compte de l’intérêt architectural de ce complexe monumental et de déterminer l’évolution chronologique du plan d’ensemble. Peut-être née d’un binôme touraula, la commanderie s’est rapidement structurée autour de deux cours : l’une destinée aux fonctions résidentielles et seigneuriales, tandis que l’autre regroupa les communs.
La présence de trois tours d’angle carrées et d’une rhétorique architecturale militaire, qui n’empêcha en rien le développement des espaces privatifs et des percements en façade, rattachent la commanderie de Montfrin aux palais aristocratiques urbains du Midi.
"Depuis Montfrin...Les Templiers, quel héritage ?" Micheline Mougneau 03/2001
En France, aux environs de l'an mille, régnent les désordres, la brutalité, la misère. Une révolte grandit contre ceux qui brûlent et pillent nos campagnes, qu'ils soient seigneurs, s'abritant dérriere le code chevalerie, ou moines invoquant l''Evangile.
A Montfrin, le seigneur du lieu est Pierre d'Albaron, descendant du chevalier qui fit passer le gué à Charles Martel.
C'est aussi la guerre religieuse: chrétiens contre musulmans (en Palestine). Idée de motiver les chevaliers indisciplinés et d'appeler le peuple de France à lutter contre l'infidèle.
C'est le temps des croisades et des pélerinages vers les lieux saints.
St Bernard est à l'origine de l'expansion de l'ordre des Cisterciens,et a une importance capitale dans la création de l'ordre du Temple. C'est lui qui en rédigera la règle de 72 articles dont celui-ci: " ni de roi de France, ni l'Evèque du lieu ne pourront commander les Templiers. Ils ne dépendront que du Pape".
L'ordre est riche. Philippe le Bel roi envieux, excommunié par le pape Boniface VIII qui périt peu après , fait élire Clément V (né à St Gilles) qui choisit de s'installer en Avignon.
Avec l'aide du nouveau pape le roi décide la suppression des Templiers.
En 1314 le dernier grand maître de l'ordre aurait dit devant le bûcher " pape Clément, roi Philippe je vous assigne à comparaître au tribunal de Dieu. Vous serez tous maudits jusqu'à la treizième génération"
40 jours aprés Clément V rend son âme, et dans la même année Philippe le Bel périt.
1146-1307: présence des Templiers (leur église et leur commanderie).
1314-1842: présence des Hospitaliers
L'ordre des Hospitaliers de St Jean de Jérusalem succède à l'ordre du temple dissous en 1314.
La commanderie est créée en 1146.
Entre 1161 et 1181 les Templiers construisirent Notre Dame de Malpas, notre église actuelle.
A la même époque ils bâtirent le donjon du château sur des bases romaines.
660 ans qui ont façonné notre histoire, mais aussi notre religion , notre vie d'aujourd'hui.
En 1999 on commémorait deux "9x100 ans":
- celui des cisterciens qui donna aux Templiers leur règle et leurs missions ( lutter contre l'infidèle et secourir les faibles, construire l'ordre du temple en instaurant une règle de vie nouvelle, dans la ligne des évangiles).
- celui de l'ordre des hospitaliers de St Jean de Jérusalem.

/image%2F1553957%2F20150414%2Fob_ccf833_a4.jpg)
/image%2F1553957%2F20150414%2Fob_75918b_a2.jpg)
/image%2F1553957%2F20150414%2Fob_d5ab5b_a3.jpg)
/image%2F1553957%2F20150414%2Fob_39e75d_a6.jpg)
/image%2F1553957%2F20150415%2Fob_b5dea1_a7.jpg)
/image%2F1553957%2F20150415%2Fob_2f6778_a8.jpg)